Top 6 (3,5 Zimmer Attika-Wohnung)

Top 6

im linken Gebäudekomplex in exponierter Lage mit tollem Blick ins Rheintal befindet sich die helle und modern geschnittene 3,5 Zimmer Wohnung. Mit einer grosszügigen sonnigen Terrasse in Richtung Südwesten geniessen Sie jeden Sonnenuntergang.

 

Die offenen geschnittenen Wohnung ist ideal geeignet für eine kleine Familie oder einen grosszügigen Manager-Haushalt.

Das Top 6 ist mit einer modernen Küchenzeile ausgestattet, und dennoch auch ideal als Büro nutzbar. Neben dem grosszügigen Schlafzimmer bietet sich das Eckzimmerals erweiterter Wohnraum mit Loftcharakter oder als zusätzliches Büro an.
Mit 100% IT-Anbindung und den verfügbaren IP-Telefonie ist das Loft einfach an das darunter liegende Büro anzubinden und es können sämtliche Services des CoWorking Spaces "Quarier4u-Au" genutzt werden - dennoch bleibt ein idealer Rückzugsort für Ihre Privatsphäre.

Attikawohnung mit Südwestlage

grosse Terrasse

beheizter Wintergarten

 höchste Ausbaustufe

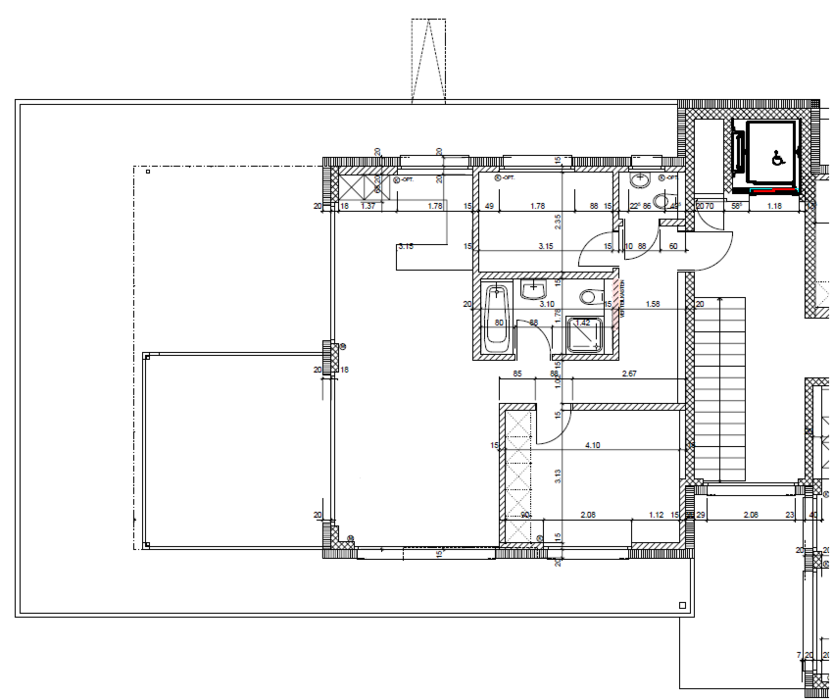
Wohnfläche: 90,m²

Terrasse: 76 m²

 

WC 1,7m²

Zimmer 2 7,6m²

Diele 10,1m²

Bad / WC 5,6m²

Wohnen 31,6m²

Zimmer1 12,9m²

überdachte Terrasse 18,2m²

restl. Terrasse 56m²

gesamte Nutzfläche: (87,7) 143,7m²

Top 6 Obergeschoss Attikawohnung 3,5 Zimmer Wohnung
Exposee Q4u Au (SG)
Wohn und Geschäftshaus Quartier4u Au (SG)
Exposee (3).compressed.pdf
PDF-Dokument [2.6 MB]

Nützen Sie die Gelegenheit für die ideale Kombination von "living & work" - im ersten CoWorking Space des St. Galler Rheintals

Quartier4u - wo Arbeiten Spass macht!